Updated at: 15.09.25

План виллы «Вилла 7 (Villa 7)» — точное решение для вашего роскошного дома
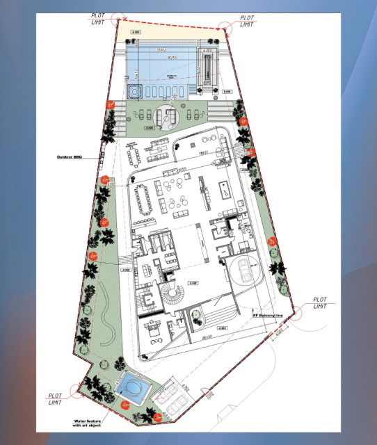
Предлагаем точный и адаптируемый план виллы «Вилла 7 (Villa 7)». Мы сопровождаем вас на каждом этапе — от проектной документации до реализации. Вы получите техническую документацию и поддержку проектной команды.
Мы предлагаем план виллы, адаптированный под ваши задачи.
Варианты проектов включают: план роскошной виллы, архитектурный план виллы для участка, готовый план виллы 7, индивидуальный проект виллы Москва, планировка роскошной виллы для строительства, современный план виллы под ключ, проект виллы для загородного участка, план виллы для строительства в России, готовый план виллы Санкт-Петербург, план виллы с акцентом на интерьер.
Запишитесь на консультацию сегодня.
More projects
Свяжитесь с нами!
Введите Ваши контактные данные и наш менеджер свяжется с Вами.
