Updated at: 14.09.25

Эксклюзивный план дома в Дубае — индивидуальный проект вашей резиденции
Антонович Дизайн (Antonovich Design) представляет эксклюзивный план дома в Дубае, созданный для клиентов, которые ценят приватность, архитектурную выразительность и безупречную отделку. Мы разрабатываем план дома в Дубае, учитывая индивидуальные требования и образ жизни владельцев.
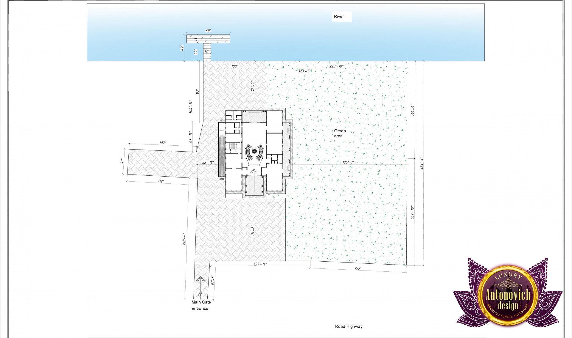
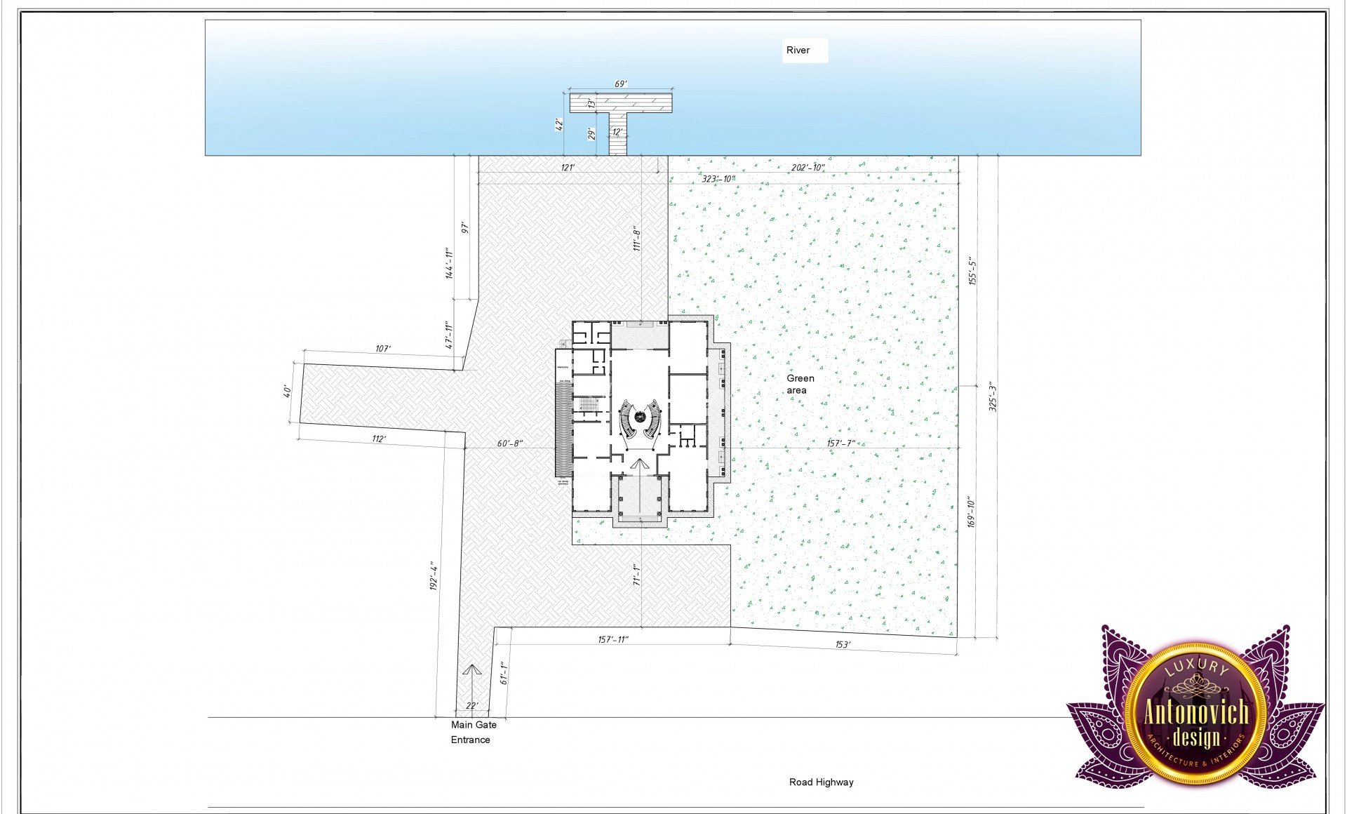
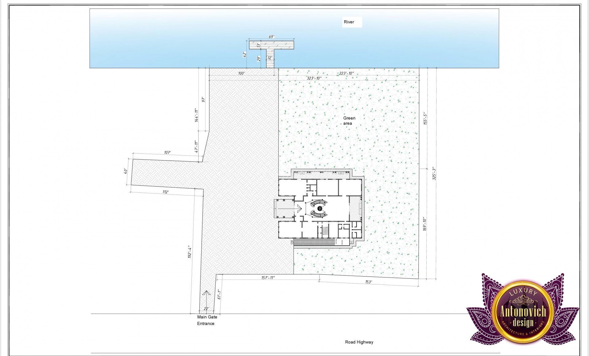
Наши специалисты выполняют индивидуальный проект дома Дубай и архитектурный проект виллы в Дубае, где каждая деталь продумана под вас. Планировка роскошной виллы в Дубае сочетает просторные зоны, приватные террасы и продуманную инсоляцию. Проект частного дома Дубай адаптируется к участку и климату.
Мы предлагаем частная резиденция Дубай проект для тех, кто планирует уникальное жильё: возможны план дома с видом на море в Дубае и план дома Дубай с бассейном. Решения учитывают ориентацию, ландшафт и требуемый уровень приватности.
Начиная с готовый план дома Дубай и до разработки плана дома Дубай под ключ, мы сопровождаем проект на всех этапах. Для индивидуального подхода доступен на заказ проект дома Дубай. Запишитесь на консультацию сегодня.
More projects
Свяжитесь с нами!
Введите Ваши контактные данные и наш менеджер свяжется с Вами.
